• Immobilientyp
  • Einfamilienhaus
  • 4
  • Schlafzimmer
  • 1
  • Bad
  • 1
  • Stellplatz
  • ca. 178 m²
  • Wohnfläche
  • ca. 258 m²
  • Grundstücksfläche
Exklusives Architekten-Einfamilienhaus im geschütztem Gartenhof mit Modernisierungskonzept in beliebter Lage
  • Kaufpreis 1.130.000,00 €

Details

  • Preis Kaufpreis 1.130.000,00 €
  • Nutzfläche ca. 56 m²
  • Grundstücksfläche ca. 258 m²
  • Schlafzimmer 4
  • Zimmer 5
  • Bad 1
  • Stellplatz 1
  • Stellplatz-Art Einzelgarage
  • Baujahr 1972
  • Immobilientyp Einfamilienhaus
  • Immobilienart Haus
  • Wohnfläche ca. 178 m²
  • Provision 3,57 % inkl. Mehrwertsteuer
  • Bezugsfrei ab Kaufpreiszahlung
  • Objektzustand renovierungs­bedürftig

Weitere Infos

  • 1 abschließbare Garage 15.000,00 EUR

Objektbeschreibung

Exklusives Architekten-Einfamilienhaus

Ein Einfamilienhaus im Münchner Südosten | Besonderer Gartenhof vom Landschaftsarchitekten | Sanierungsbedürftig mit Modernisierungskonzept | Familienfreundlich & Home-Office-tauglich

 

Im Jahr 1972 errichtete der ausgezeichnete Architekt Georg Eichbauer dieses bemerkenswerte Architekten-Einfamilienhaus als Winkelhaus mit einem geschützten und lichtgebenden Gartenhof in Süd-Ausrichtung in einer anspruchsvollen Wohnanlage. Eine besonders schöne Architektur findet sich hier ebenso im Landschaftsbild des Süd-Gartens.

Das Architekten-Einfamilienhaus verfügt über viel Platz und sehr flexible Nutzungsmöglichkeiten, da die Erstellung des Hauses kaum mit tragenden Wänden erfolgte.

Über einen Windfang gelangt man linker Hand zum Gäste-WC und zur Garderobe. In diesem Bereich ist es möglich, ein weiteres Duschbad zu errichten.

Geradeaus erreicht man den offen gestalteten Essplatz neben dem Treppenaufgang mit Zugang auf die Terrasse über ein kleines Plateau mit zwei Stufen. Der Essplatz lässt sich aber auch leicht über das dahinter liegende Zimmer, welches derzeit als großes Büro genutzt wird, erweitern. Der dann verbleibende Teil des dahinter liegenden Zimmers könnte weiterhin als kleineres Büro oder Gästezimmer dienen.

Gegenüber vom Essplatz befindet sich die Küche mit funktionaler, heller Einbauküche. Eine zukünftig offene Gestaltung der Küche zum Essplatz ist ebenso denkbar.

Das exklusive Architekten-Einfamilienhaus bietet eine abwechslungsreiche Atmosphäre durch die integrierte Split-Level-Bauweise. So gelangt man über zwei Stufen in das ca. 38 m² große, wunderschöne, lichtdurchflutete Wohnzimmer mit fast deckenhoher und über die Raumlänge verlaufender Fensterfront.

Für eine gemütliche Atmosphäre an kalten Tagen könnte im Wohnzimmer zukünftig auch ein Kamin sorgen.

Über die XXL-Fensterfront im Wohnzimmer gelangt man auf die große Terrasse und in den herrlichen, von einem Landschaftsarchitekten besonders naturnah inszenierten und nahezu uneinsehbaren Gartenhof in Südausrichtung.

Mit der ganz besonderen Gestaltung dieses Gartenhofes verbinden sich die Innen- und Außenräume des Architekten-Einfamilienhauses in Form eines Winkelhauses optimal, sobald man die große Glas-Schiebetür des Wohnzimmers öffnet und über die Terrasse auf die dort platzierte Brunnenskulptur zugeht.

Ein Kunstgriff vergrößert den Gartenhof optisch durch eine zentrale, tief angelegte Rasenmulde – überbrückt von einem eleganten und filigranen Holzsteg. In circa einem Meter Höhe führt dieser von der Brunnenskulputur über das „Rasental“. Am Ende des Stegs kann man den Garten durch eine begrünte, im Holzzaun versteckte Tür verlassen, um beispielsweise in den gegenüberliegenden Park zu gelangen.

Der Holzsteg überspannt nicht nur das „Rasental“, sondern auch zwei rechteckige Betonbecken mit Wasserpflanzen und Goldfischen.

Viele seltene Pflanzen zeichnen sowohl im Gartenhof als auch auf dem Dachgarten ein besonders Bild.

So überragt beispielsweise – kunstvoll in die modellierte Rasenfläche gepflanzt – eine seltene Eichenart Haus und Garten. Die Terrasse – bestehend aus gesägten Granitplatten – liegt unter dem Schirm einer Schwarzkiefer.

Ein praktischer Wasseranschluss sowie eine Steckdose im Außenbereich runden dieses besondere Landschaftsensemble für alle Gartengenießer ab.

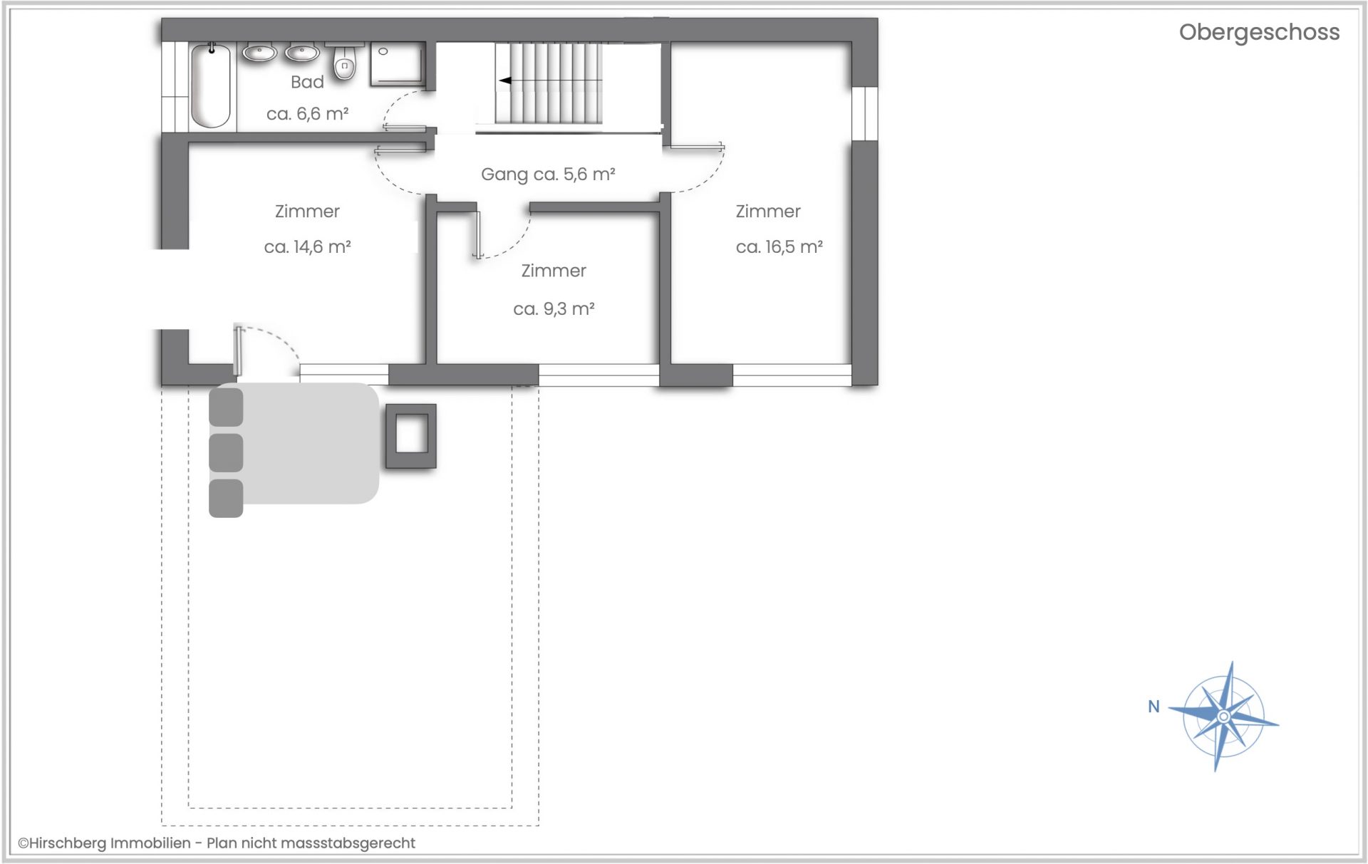
Im ersten Obergeschoss befinden sich drei weitere Schlafzimmer sowie das Tageslicht-Wannen-Bad mit zwei Waschbecken, einer separaten Dusche und einem WC. Auch hier sind kaum tragende Wände vorhanden, so dass Zimmergrößen leicht eigenen Bedürfnissen angepasst werden könnten.

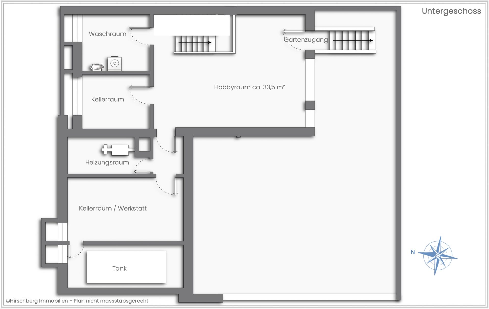
Im Untergeschoss erreicht man zunächst den Waschraum mit Waschbecken – bei Bedarf lässt sich hier eine weitere Dusche einrichten.

Der großzügige Hobbyraum mit über ca. 33 Quadratmetern, zwei großen Fenstern, Heizung, einer Raumhöhe von ca. 2,50 m inklusive separatem Zugang in den Garten ist eine fantastische Ergänzung im Haus und erlaubt viele verschiedene Nutzungsmöglichkeiten.

Über das abschließbare Gartentor gelangt man auf einen angrenzenden Gehweg mit vorgelagerten frei verfügbaren Parkplätzen, so dass ein Einkauf auch einmal schnell durch das Gartentor in das Haus findet und Gartenabfälle wiederum nicht durch das Haus getragen werden müssen.

Lager- und Abstellmöglichkeiten finden sich im Untergeschoss neben dem Heizungs- und Tankraum in einem kleineren und einem größeren Kellerraum. Der größere Kellerraum bietet sich auch als Werkstatt an. Zudem ist eine Wasserfilteranlage im Heizungskeller installiert.

Eine Modernisierung der Heizungsanlage erfolgte im Jahr 2003 mit Brenneraustausch im Jahr 2024 und die Erneuerung der Sicherheits-Tankinnenauskleidung im Jahr 2020.

In den Jahren 2000 und 2015 fand eine Sanierung des Steil- und Flachdaches statt.

Zu empfehlen ist die Erneuerung der Fenster und der Außentüren, welche aus dem Baujahr stammen sowie die Kellerdeckendämmung in nicht beheizten Räumen. Die Fenster verfügen über Rollläden – im Ess- und im Wohnzimmer bereits mit elektrischer Steuerung.

Die Innenraumgestaltung bietet viele Möglichkeiten – z.B. werden bestimmt die Böden erneuert oder die Küche offen gestaltet.

Zu diesem besonderen Architekten-Einfamilienhaus gehört eine Einzelgarage mit abschließbarem Stahlkipptor, Strom und Licht im benachbarten Garagenhof mit einer anteiligen Grundstücksfläche von ca. 15 Quadratmetern.

 

Ideen & Möglichkeiten

  • großes Wohnzimmer zukünftig mit Kamin
  • geräumiger Hobbyraum mit eigenem Zugang erlaubt diverse Nutzungsmöglichkeiten
  • vier weitere Zimmer – nach Bedarf flexibel gestaltbar mit neuen Zimmergrößen
  • Essplatzerweiterung möglich
  • offene Gestaltung der Küche umsetzbar
  • Potenzial für weiteres Duschbad im Erdgeschoss & zusätzliche Dusche im Waschkeller
  • herrlicher Gartenhof in Süd-Ausrichtung mit besonderer Landschaftsarchitektur für kreative Gartenliebhaber

 

Kaufpreis

EUR 1.130.000,00    Einfamilienhaus

EUR     15.000,00    Einzelgarage

———————–

EUR 1.145.000,00  Gesamtkaufpreis

 

Kontaktieren Sie uns gerne – über das Kontaktformular, schreiben Sie uns eine Nachricht oder Rufen Sie uns an.

Wir freuen uns auf Sie und vereinbaren gerne einen persönlichen Besichtigungstermin mit Ihnen.

Lage

Ottobrunn, im Münchner Süd-Osten mit

schnellen Anbindungen -> ruhig & grün -> beste Lebensqualität -> hoher Freizeitwert

 

Ottobrunn – eine der gefragtesten Gemeinden im Landkreis München mit eigenem S-Bahnhof. Hier bevorzugt man die ruhige, grüne Wohnlage und genießt gleichzeitig eine tolle Infrastruktur.

 

Das Haus liegt nur 4 Gehminuten von der nächsten Bushaltestelle (222) entfernt. Gerne werden die Buslinien 222 (9 Minuten zum U- und S-Bahnhof Neuperlach Süd) oder X200 (in 20 Minuten am Münchner Ostbahnhof) genutzt.

 

Freizeiteinrichtungen, wie das beliebte Phönix-Bad mit Wasserrutschen & tollem Wellness-Bereich sowie die Anlage des TSV-Ottobrunn mit Eislaufbahn, Fußballhalle, Kunstrasen-Feld und Leichtathletikbereich bieten viele sportliche Aktivitäten für Jung und Alt und sind leicht in 5 Minuten zu Fuß erreichbar.

 

Kulturell bietet Ottobrunn seinen Bewohnern & Gästen recht abwechslungsreiche Unterhaltung. So finden Konzerte, Theater und Lesungen statt, ein Zirkus schlägt seine Zelte auf und regelmäßig finden Feste statt (Sommerfest, Straßenfest, Sommerfeuer). Auch Märkte mit Produkten aus der Region oder der Christkindlmarkt finden großen Anklang.

 

Ottobrunn verfügt über 3 Grundschulen sowie 1 Gymnasium. Es gibt zahlreiche Kindergärten, darunter einen Waldkindergarten. In den Schulen und in den meisten Kindergärten findet Nachmittagsbetreuung statt.

 

Großer Beliebtheit erfreuen sich zahlreiche Restaurants, Cafés und Biergärten sowie das frisch sanierte und fußläufig erreichbare IsarCenter für Einkäufe des täglichen Bedarfs.

 

Hervorzuheben ist die schnelle Anbindung zur A8 – in Richtung München Innenstadt/Mittlerer Ring (ca. 10 Minuten), zum Flughafen über die A99 (ca. 40 Minuten) und in Richtung Voralpenland, z.B. zum Chiemsee (ca. 45 Minuten).

Ausstattung

  • großzügiges Wohnzimmer mit über 38 m² Wohnfläche & XXL-Fensterfront
  • 4 Schlafzimmer
  • Tageslicht-Wannenbad mit separater Dusche, zwei Waschbecken und WC
  • großer Hobbyraum (ca. 33 m²) in Wohnraumqualität mit separatem Zugang
  • herrlicher Gartenhof mit viel Privatsphäre, besonderer Landschaftsarchitektur, Brunnenskulptur & zwei Wasserbecken in sonniger Südausrichtung
  • Gartenzugang über abschließbares Gartentor
  • Wasseranschluss und Steckdose im Außenbereich
  • abschließbare Einzelgarage im benachbarten Garagenhof

Sonstiges

Wir bieten persönlichen Besichtigungstermine und beantworten Ihre Fragen sorgfältig.

Rufen Sie uns einfach an – wir stehen Ihnen gerne zur Verfügung!

 

HINWEIS

Trotz sorgfältiger Prüfung können wir keine Haftung für die Richtigkeit und die Vollständigkeit der Objektdaten übernehmen. Diese basieren auf uns erteilten Angaben sowie eigenen Recherchen. Die Grundrissdarstellung ist nicht maßstabsgerecht.

Es gelten unsere Allgemeinen Geschäftsbedingungen.

 

Wir wurden mit dem Verkauf dieser Immobilie im Alleinauftrag betraut. Es ist der ausdrückliche Wunsch der Eigentümer, dass sämtliche Gespräche und Besichtigungen über uns abgewickelt werden.

 

Die Käuferprovision beträgt 3,57 % inkl. MwSt., d.h. eine Provision von 3 % aus dem Kaufpreis, zzgl. gesetzlich geltender Mehrwertsteuer (derzeit 19 %), verdient und fällig mit Beurkundung des notariellen Kaufvertrages. Hirschberg Immobilien hat einen provisionspflichtigen Maklervertrag ebenso mit der Verkäuferseite in gleicher Höhe abgeschlossen.

 

Seit dem 13.06.2014 gilt das “Gesetz zur Umsetzung der EU-Verbraucherrechte-Richtlinie“. Die Neuregelungen im Verbraucherrecht haben unter anderem zur Folge, dass Verbraucher die Möglichkeit haben, Verträge über Dienstleistungen von Immobilienmaklern, welche außerhalb von Geschäftsräumen oder über das Internet sowie per Telefon, E-Mail oder Brief geschlossen wurden, innerhalb von 14 Tagen zu widerrufen.

 

Die vorgeschriebene Widerrufsbelehrung samt Muster-Widerrufsformular erhalten Sie von uns i. d. R. nach Ihrer Kontaktaufnahme in einer separaten E-Mail und/oder als Bestandteil des Objektexposés.

 

Wir freuen uns auf Ihre Nachricht, mit der Sie uns bitte Ihren Vor- und Zunamen samt vollständiger Anschrift, eine Telefonnummer (gerne mobil) sowie ihre E-Mail-Adresse übermitteln.

 

Mit den Datenschutzhinweisen informieren wir Sie über die Datenverarbeitung in unserem Haus. Diese Datenschutzerklärung finden Sie als Link unter “Rechtliches” und erhalten diese ebenso nach Ihrer Kontaktaufnahme mit separater E-Mail. Der guten Ordnung halber weisen wir darauf hin, dass wir die uns von Ihnen übermittelten Daten ausschließlich zur Bearbeitung Ihrer Anfrage bzw. des uns i. d. R. erteilten Verkaufs-/Vermietungsauftrages verwenden. Hieraus ergibt sich, dass Daten von Kaufinteressenten unter Umständen an unsere Auftraggeber (Verkäufer, Vermieter usw.) bzw. an das einen evtl. Kaufvertrag abwickelnde Notariat weitergegeben werden. Sollten Sie hiermit nicht einverstanden sein, so teilen Sie uns dies bitte ausdrücklich mit.

Grundrisse

Energieklasse

  • Energieklasse: H
  • Endenergieverbrauch des Gebäudes: 279,7 kWh/m².a
  • Energieausweis: liegt vor
  • Heizungsart: Zentralheizung
  • Energieträger: Öl
  • Ausweistyp: Bedarfsausweis
  • A+
  • A
  • B
  • C
  • D
  • E
  • F
  • G
  • 279,7 kWh/m².a | Energieklasse H
    H
Die Objektdaten basieren auf uns erteilten Angaben und eigenen Recherchen - trotz sorgfältiger Prüfung können wir keine Haftung für die Richtigkeit und die Vollständigkeit übernehmen. Die Grundrisse sind nicht maßstabsgerecht. Bitte beachten Sie, dass dieses Angebot nur für Sie persönlich und nicht zur Weitergabe an Dritte bestimmt ist. Unsere Angebote erfolgen freibleibend und unverbindlich. Irrtum und Zwischenverkauf bleiben vorbehalten.