Details
-
Preis Netto-Kaltmiete 5.250,00 €
-
Zimmer 5
-
Stellplätze 2
-
Stellplatz-Art Außenstellplätze
-
Baujahr 1896
-
Immobilienart Atellier, Ausstellungsfläche, Büro, Galerie
-
Immobilienstatus Gewerbe
-
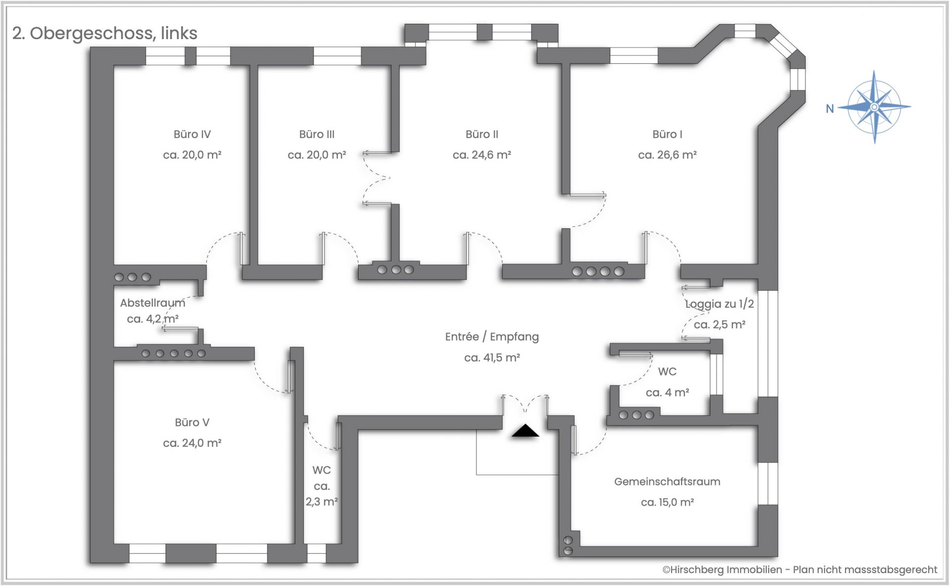
Gewerbefläche ca. 185 m²
-
Nebenräume Gemeinschaftsraum und Abstellraum
-
Provision 1 Netto-Kaltmiete zzgl. Stellplatzmiete zzgl. MwSt.
-
Bezugsfrei ab 01.01.2026
-
Objektzustand saniert
-
Etage 2
-
Etagenanzahl 4
-
WC 2
Weitere Infos
-
2 Außenstellplätze EUR 200,00
Objektbeschreibung
Sehr beeindruckend – stilvolle & elegante Gewerberäume in Renaissance-Architektur!
Frisch sanierte Räume im Stilaltbau – ein repräsentativer Firmensitz für
Agentur | Atelier | Büro | Galerie o.Ä.
-
die Exklusivität sehenswert
-
die Atmosphäre spürbar
-
die Wirkung bleibt
Im 2. Obergeschoss eines prachtvollen, denkmalgeschützten Gebäudes aus dem Jahr 1896 im Stil der deutschen Renaissance erwarten Sie Räume mit außergewöhnlicher Strahlkraft.
Die aufwendig sanierten Gewerberäume verbinden historische Grandezza mit exquisiter Ausstattung und schaffen ein ausgewogenes Ambiente von Stil, Eleganz & Repräsentation.
Die Großformatigen Holz-Kassetten-Fenster durchfluten die Räume mit Licht und setzen das edle Parkett ebenso in Szene, wie die kunstvollen Kassetten-Flügeltüren. Sorgfältig erhaltene Details verleihen eine unverwechselbare Aura.
Mit fünf imposanten Räumen und einem großzügigen Gemeinschaftsraum eröffnen sich vielfältige Nutzungsbereiche – für
- einen exklusiven Firmensitz
- ein luxuriöses Atelier oder
- eine elegante Galerie.
Das großzügige Entrée empfängt Gäste mit eindrucksvoller Noblesse, während die Süd-Loggia als Rückzugsort dienend, der praktische Abstellraum sowie die beiden Toiletten das gelungene Raumgefühl abrunden.
Installierte Ethernet-Netzwerkkabel fügen sich dezent in das historische Gesamtbild und gewährleisten eine zeitgemäße Infrastruktur.
Diese außergewöhnlichen Räume bieten viel – sie schaffen ein luxuriöses Umfeld für Menschen, die Wert auf Qualität, Ästhetik und besondere Atmosphäre legen.
Bezug
ab 01.01.2026
Laufzeit
5 Jahre + Option f. weitere 5 Jahre
monatliche Mietkosten
EUR 5.250,00 Nettokaltmiete Gewerbeeinheit
EUR 555,00 Nebenkostenpauschale
———————–
EUR 5.805,00 Zwischensumme
EUR 200,00 2 Außenstellplätze á EUR 100,00
———————-
EUR 6.005,00 Nettomiete
zzgl. Heizkosten (Gas) nach Verbrauch
zzgl. gesetzl. geltender MwSt. (dzt. 19 %)
Die Stellplätze stehen optional zur Verfügung.
Kaution
EUR 15.750,00
Provision
EUR 5.250,00
= 1 Nettokaltmiete zzgl. Netto-Stellplatzmiete
zzgl. gesetzl. geltender MwSt. (derzeit 19 %)
Sehr gerne vereinbaren wir mit Ihnen einen persönlichen Besichtigungstermin.
Wir freuen uns auf Ihren Anruf oder Ihre Nachricht.
Lage
Eine sehr beliebte Lage in der Münchner Ludwigsvorstadt …
… zentral & im Villenquartier des Wiesenviertels
In der Münchner Ludwigsvorstadt bildet im Wiesenviertel das Villenquartier – mit vornehmer, villenartiger Miets- & Wohnhausbebauung in offener Bauweise – eine städtebauliche Besonderheit.
So entstand in einem der ältesten Villenquartiere der bayerischen Landeshauptstadt der denkmalgeschützte Altbau aus dem Jahre 1896 mit seinem nostalgischen Flair und ist eine Rarität in beliebter Lage mitten im Stadtzentrum.
Das stilvolle Büro in der Ludwigsvorstadt ist leicht erreichbar – ganz gleich ob zu Fuß, mit dem Fahrrad, mit öffentlichen Verkehrsmitteln oder mit dem Pkw.
Die U-Bahnstation „Goetheplatz“ mit den U-Bahnlinien U3 und U6 erreicht man zu Fuß in ca. 5 Minuten. Die U-Bahnstation mit der U-Bahnlinie U5 ist in ca. 8 Minuten zu Fuß erreichbar.
Den Münchner Hauptbahnhof erreicht man zu Fuß in ca. 13 Minuten – öffentlich mit dem Bus Nr. 68 in ca. 7 Minuten oder mit dem Pkw in ca. 5 Minuten. Am Münchner Flughafen ist man mit dem Pkw in ca. 35 Minuten – mit öffentlichen Verkehrsmitteln in ca. 45 Minuten.
In direkter Umgebung finden sich zahlreiche Restaurants (z.B. vietnamesisch, italienisch, indisch), Bäcker, Metzger, Imbiss, etc., womit eine Bewirtung bzw. Verpflegung Ihrer Gäste und Mitarbeiter ein Leichtes ist.
Auch Geschäfte des täglichen Bedarfs, Ärzte, Apotheken, Hotels befinden sich in naher Umgebung. Ebenso können Ihre Gäste öffentliche Parkplätze direkt vor Ort nutzen.
Als Mieter der Gewerbefläche sind Sie Anwohner. Ihnen steht damit frei, eine Anwohner-Parklizenz zu erwerben.
Nicht unerwähnt soll die bequeme Nähe zum berühmten Münchner Oktoberfest bleiben.
Sonstiges
Zur Anmietung der Gewerbefläche wird eine gute Bonität vorausgesetzt.
Wir freuen uns über Ihr Interesse und vereinbaren gerne einen persönlichen Besichtigungstermin mit Ihnen.
HINWEIS
Bitte übermitteln Sie uns bei Interesse Ihren Unternehmensnamen, Vor- und Zunamen des Ansprechpartners, die vollständige Anschrift, eine Telefonnummer (gerne mobil) sowie die E-Mail-Adresse.
Daten und Angaben stammen vom Eigentümer. Diese werden von uns sorgfältig überprüft. Dennoch weisen wir darauf hin, dass wir für die Richtigkeit der Angaben und die Verfügbarkeit der Gewerbefläche zum Zeitpunkt der Anfrage keine Garantie übernehmen.
Die Grundrissdarstellung ist nicht maßstabsgerecht.
Die Provision beträgt eine Monatsmiete (EUR 5.250,00, zzgl. Stellplatzmiete), zzgl. der gesetzlich geltender Mehrwertsteuer (derzeit 19 %) und ist mit Abschluss des Mietvertrages verdient und fällig.
Es gelten unsere Allgemeinen Geschäftsbedingungen und Datenschutzerklärung.
Im Sinne der seit Mai 2018 geltenden DSGVO versichern wir, Ihre uns übermittelten Daten vertrauensvoll zu behandeln.
Insofern Sie mit einer Speicherung Ihrer Daten unsererseits nicht einverstanden sind, bitten wir um eine entsprechende Mitteilung.





